aka-architektur
Information
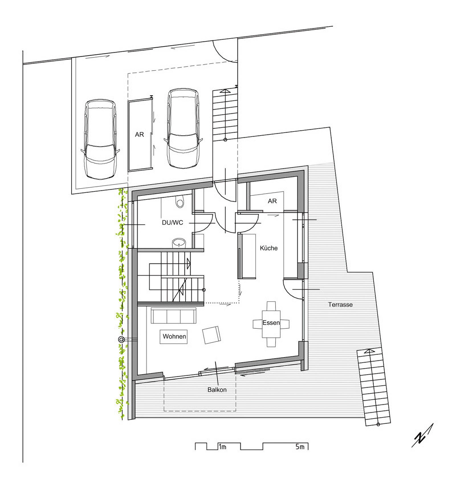
Neubau
Ferienhaus
NEUMARKT
AM WALLERSEE
Austria
Haus Bourdon
Keller Massivbau
Holzbau mit BSP-Massivholzplatten
Bauherr: Privat
NF 130m
2
Planung 2011
Fertigstellung 06/2012
Index
Next →
©2025
Impressum